リフォーム
歯科リフォーム
歯科工事に精通した弊社。必ず期待にお応え致します。
開業から10年を迎えるとそろそろリフォームを考える時期でもあります。
IT、ネット時代に生きる中、社会の移り変わりも早く、人々の嗜好も数年で変リます。
人気店も戦略を誤ると、とたんに閉店に追い込まれる時代です。
技術の進歩も目覚ましく、新しい製品が多く生まれ、人々の生活を豊かにしていきます。
このような中で歯科医院の開業から10年を超え、何もしないと患者様に古さを感じ与える事もあり、新しく開業した歯科医院に目がいきます。

リフォームをする理由は、いくつかあります。
1 新しい機材を入れ替える時。
2 内装の古さが目立ち始めた時。
3 居抜きで開業する時。

リフォームへの要望も大体同じです。
1 なるべく工事金額は安く抑えたい。
2 工事期間は短くしたい。診療を休みたくない。

リフォーム工事金額は施工単価が高くなる場合がある。
例えば、診療室の床材張替え工事を例に取ると、チェアユニット、パーティーション、家具等がある為、新築工事に比べて施工単価が上がります。
又、工期を短く早く仕上げる場合、例えば既存のパーティションを撤去する場合、コンセント等が付いていると、電気工事、大工、床補修工事等が必要で、業種、人件費が多くかかります。小さな工事でも高くつく事もあるのです。
このように事前の打ち合わせが非常に大事で、怠ると後でトラブルになります。
安く工事金額を提示する業者には見積り内容、図面確認をする必要があります。
歯科の工事に精通した信頼のおける業者を選ぶことが成功のカギとなるでしょう。
歯科リフォーム(プラン)
リフォーム
人は視覚的に受ける印象で物事を判断して行動するものです。
開業から10年以上経過された医院様は、そろそろリフォームを検討されてはいかがでしょうか。
見た目の劣化、汚れを放置しておくと患者さまは衛生面にも不安を感じ、マイナスイメージを与えて信頼を失うことになります。
働くスタッフの動線も無駄な動きはないか、使いづらいところはないか、再検討も必要かもしれません。
限られた期間、資金を如何に有効に活かせるかご提案致します。
リフォーム前
リフォーム前
Before
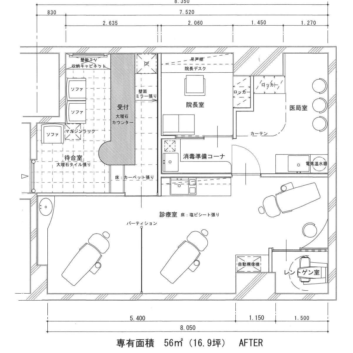
リフォーム後
リフォーム後
After
開業30数年経過し、時代に即したリフォームを考える。

開業当初は患者も多く、効率を考えたレイアウトを主体とし、診療ユニットを4台配置した。患者様に与える第一印象の受付、待合室のインテリアを非常に大事とし、落ち着きのある高級感を演出した。受付カウンターは大理石を使用し、腰は黒のレザー布団張り。待合室床はチーク材の斜め張り。受付後方壁はミラーガラス面取りカット張り。落着き照明の中、待合室にアクア水槽を設置して高級感を演出した。非常に好評である。

今回のリフォーム。質の高い医療を進める為、診療室のチェアユニットを3台に減らし、個室に近いレイアウトとした。待合室のインテリアは高級感を保ちつつ、待合室床は大理石タイル張り、カウンター腰は黒から白のレザー布団張り。足元照明を配置。落着きの明るさを演出した。