住宅リフォーム

住宅リフォーム

歯科絶頂期に開業され、30数年を経た医院様には人生の節目と跡継ぎご子息の問題を抱える時期でもあります。これを機にリノベーションを検討されてはいかがでしょう。設備の老朽化に伴い、いろいろな不具合が生じてくる時期に入りますし、社会の変化にも対応していかなければなりません。
ご子息が開業する場合、他での新規開業よりも圧倒的に有利です。信用度、資金の調達等、今までの実績を活かせることができ、新たな患者獲得にも繋がります。
将来を見据えた新しい医院造りをご提案致します。

自宅兼オフィスへ

自宅兼事務所として改装。事務所との体裁も整えたい。そんな願いを叶えた住まい。

洋間1・2を撤去し、事務所として改装。事務所スペースは、そのまま外部から靴を脱がずに入れるフラット仕上げとしました。
自宅玄関はアール部分で段差を設け、仕事、生活部分を明確に分離し気持ちの切り替えを促す役目を果たします。
キッチンも広さを確保して、新たにパントリーを設けて収納力アップ、使い勝手が非常に楽になりました。
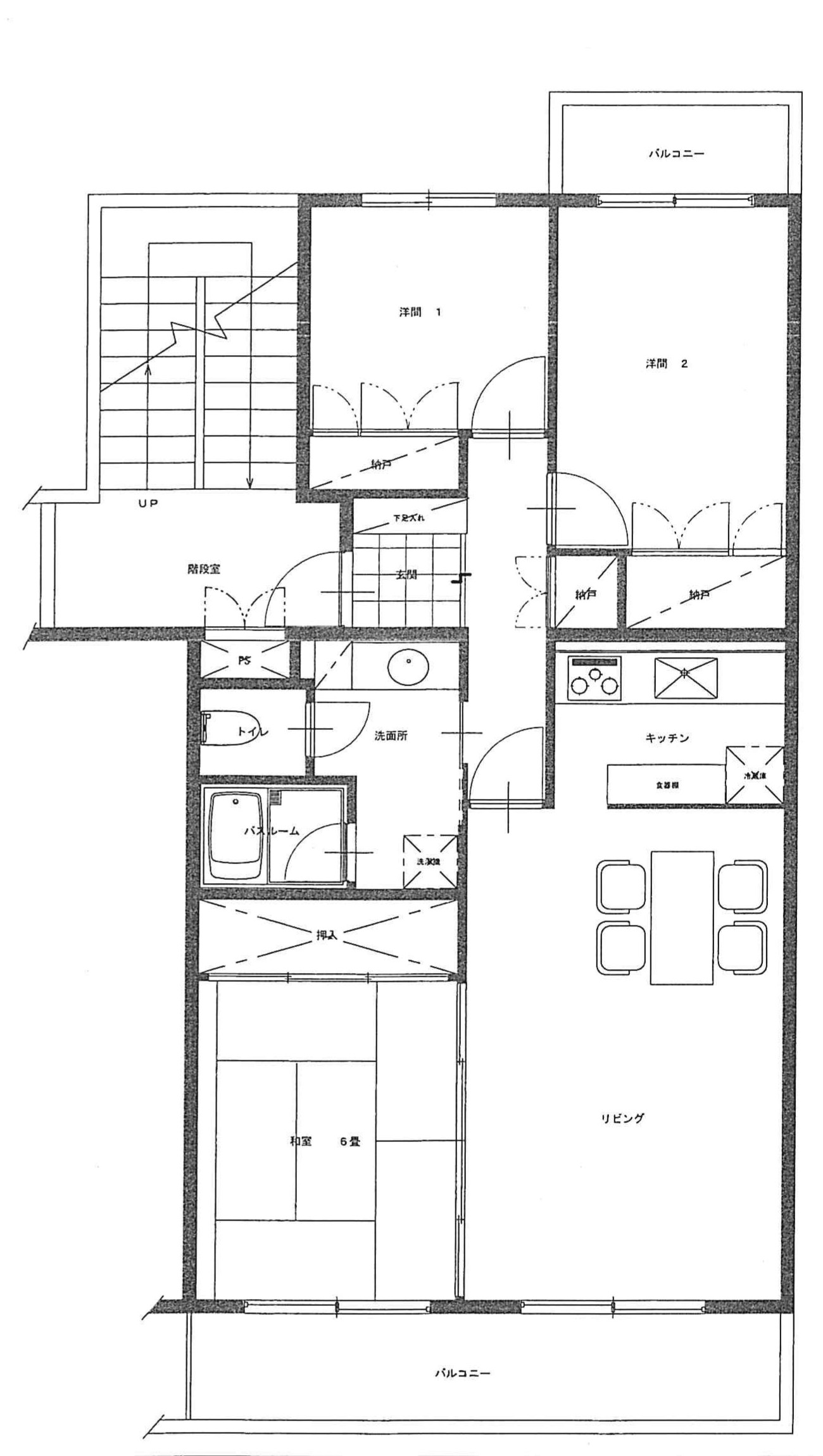
リフォーム前
リフォーム前

Before
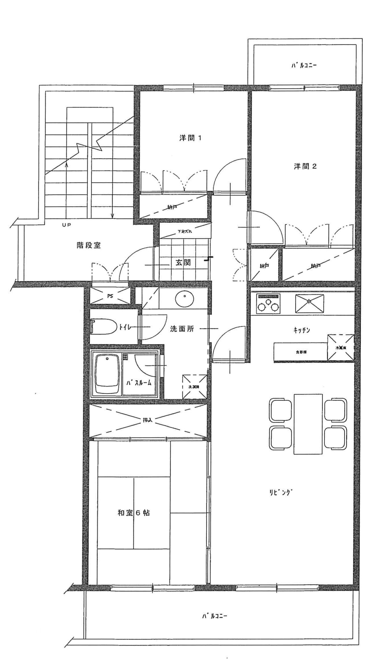
リフォーム後
リフォーム後

After

プレイルーム付きリフォーム

サイクリングが趣味のご夫妻。料理が趣味の奥様。
バスタイムも楽しみたい。そんな希望を叶えた住まい。


下足入れを移動し、一部壁を後退させることで、玄関周りが広くなり、空間に余裕が生まれ、自転車も楽に出し入れが可能。いつまでも自転車を眺め、触れていたい。そんな願いで自転車専用室を設けた。
壁一面には全面収納棚を設け、関連部品を納めることが出来る。
キッチンも広げてL型に配置し、使い勝手を高め、新たにパントリーを設けた。又、バスタイムも身体をリラックスさせる重要な時間と考え、ホテル感覚で楽しんでもらえる大きくゆったりとしたバスユニットを選んだ。
リフォーム前
リフォーム前

Before
リフォーム後
リフォーム後

After

自宅兼鍼灸院へ

自宅で鍼灸院を営みたい。そんな願いを叶えた住まい。

洋間1・2を撤去し、施術室として改装。そのまま外から靴を脱がずに入れるフラット仕上げにしました。
自宅玄関はアール部分で段差を設け、仕事、生活部分を明確に分離し気持ちの切り替えを促す役目を果たします。
キッチンも広く取り、動きも楽に食材のストックも多く取れます。リビングに繋がる和室をやめて独立した洋間寝室とし、リビングも外部バルコニーと一体性を持たせ、広さを感じさせるよう床フローリング張り仕上げとしました。
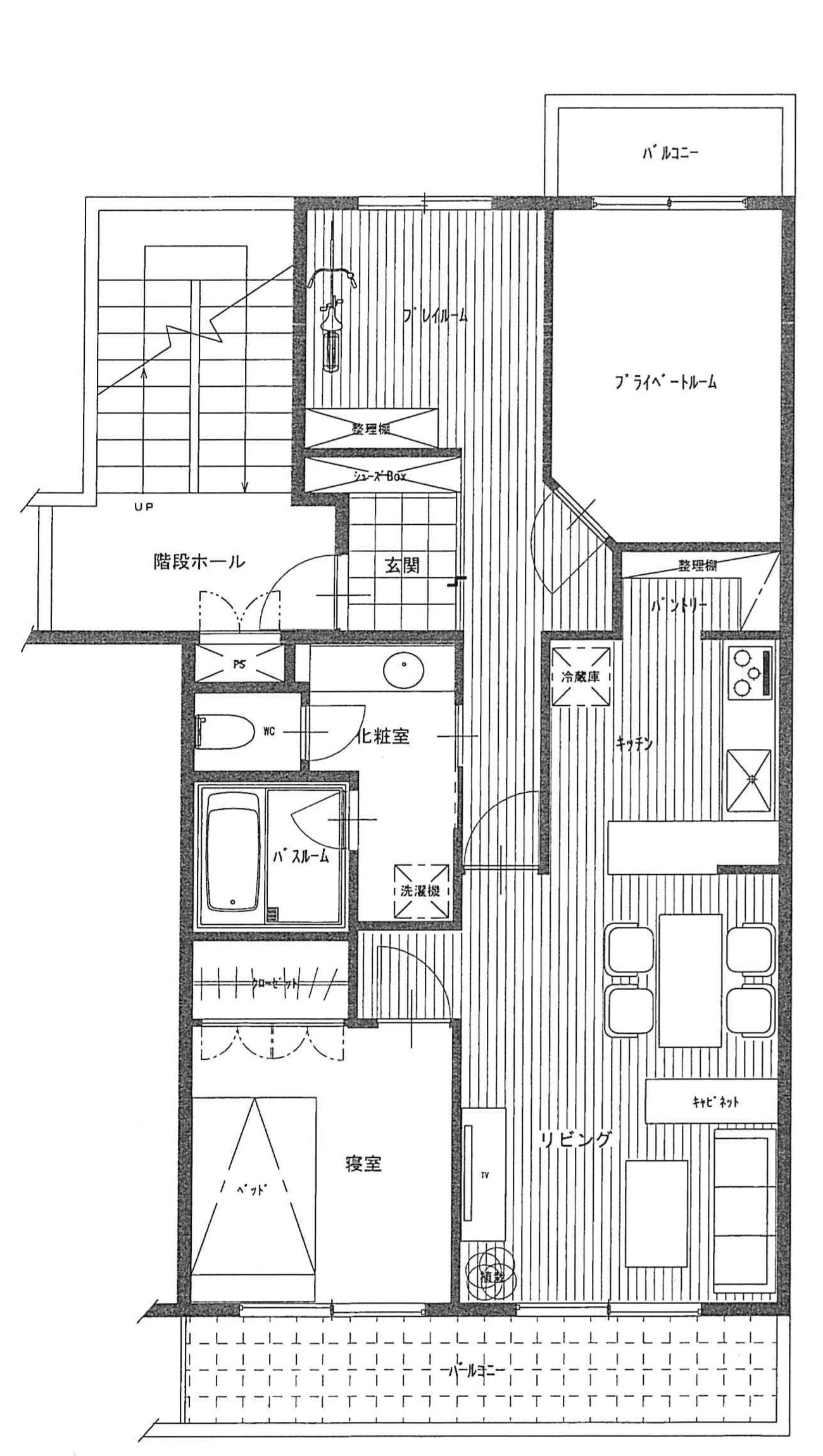
リフォーム前
リフォーム前

Before
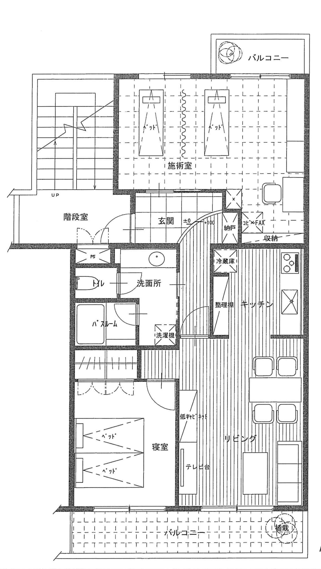
リフォーム後
リフォーム後

After

オーディオルーム付きリフォーム

映画、音楽鑑賞が趣味のご夫妻。自宅でゆっくり楽しみたい。そんな希望を叶えた住まい。

玄関正面の壁を一部後退させることで空間に広がり出て、余裕が生まれる。
キッチンも新たにパントリーを設け、広く使いやすく、カウンターテーブルを設けた。又、衣類の収納スペースとして新たにウォーキングクローゼットを設けた。和室を撤去してオーディオ、シアタールームを設け、音楽映像を楽しむ事が出来る。
リフォーム前
リフォーム前

Before
リフォーム後
リフォーム後

After