リノベーション

歯科リノベーション

歯科リノベーション

歯科絶頂期に開業され、30数年を経た医院様には人生の節目と跡継ぎご子息の問題を抱える時期でもあります。これを機にリノベーションを検討されてはいかがでしょう。設備の老朽化に伴い、いろいろな不具合が生じてくる時期に入りますし、社会の変化にも対応していかなければなりません。
ご子息が開業する場合、他での新規開業よりも圧倒的に有利です。信用度、資金の調達等、今までの実績を活かせることができ、新たな患者獲得にも繋がります。
将来を見据えた新しい医院造りをご提案致します。
リフォーム前
リフォーム前
Before
リフォーム後
リフォーム後
After
リフォーム前
リフォーム前
Before
リフォーム後
リフォーム後
After
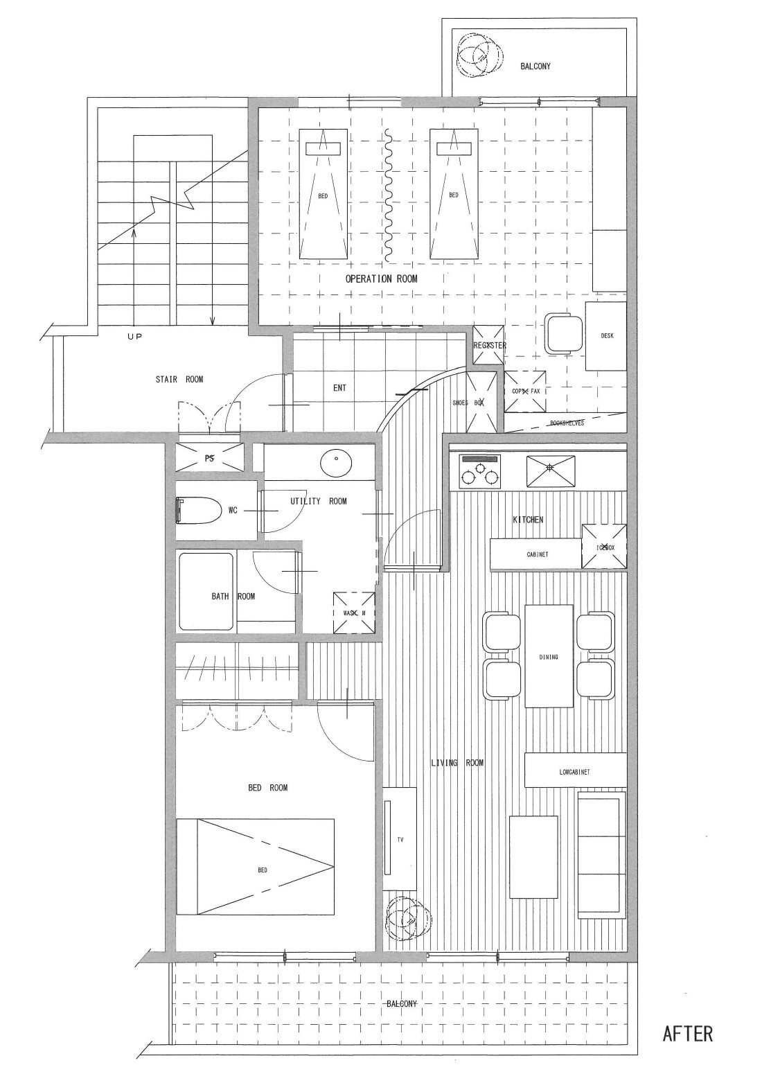
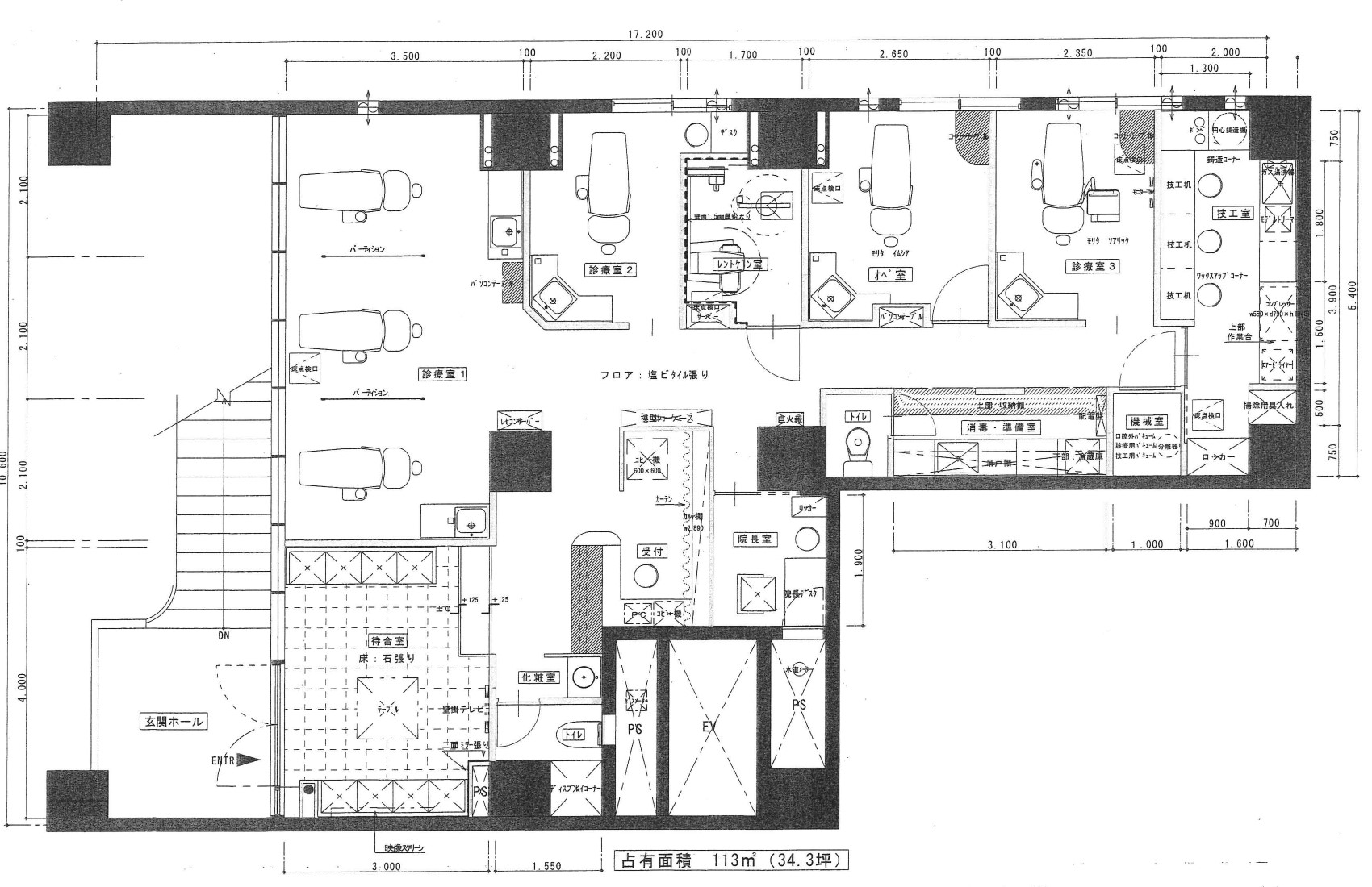
開業30数年を迎え、時代に即した、リノベーションを考える。
内装、設備を全て解体し、医療器材も新しく入れ替える。基本的なレイアウトは残しつつ、収納を整理した。待合室の床上げを撤去して、石張りとし、土足仕様とした。
工事期間、約40日。全体的にすっきりとして好評である。
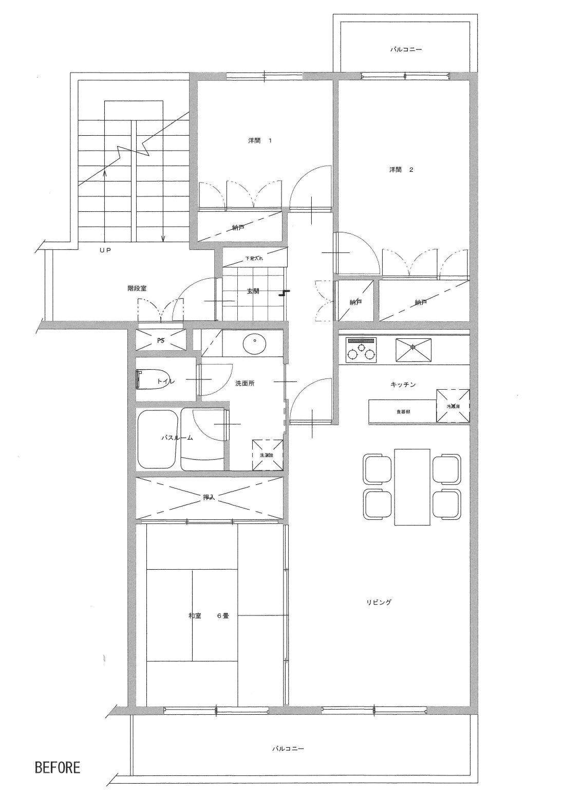
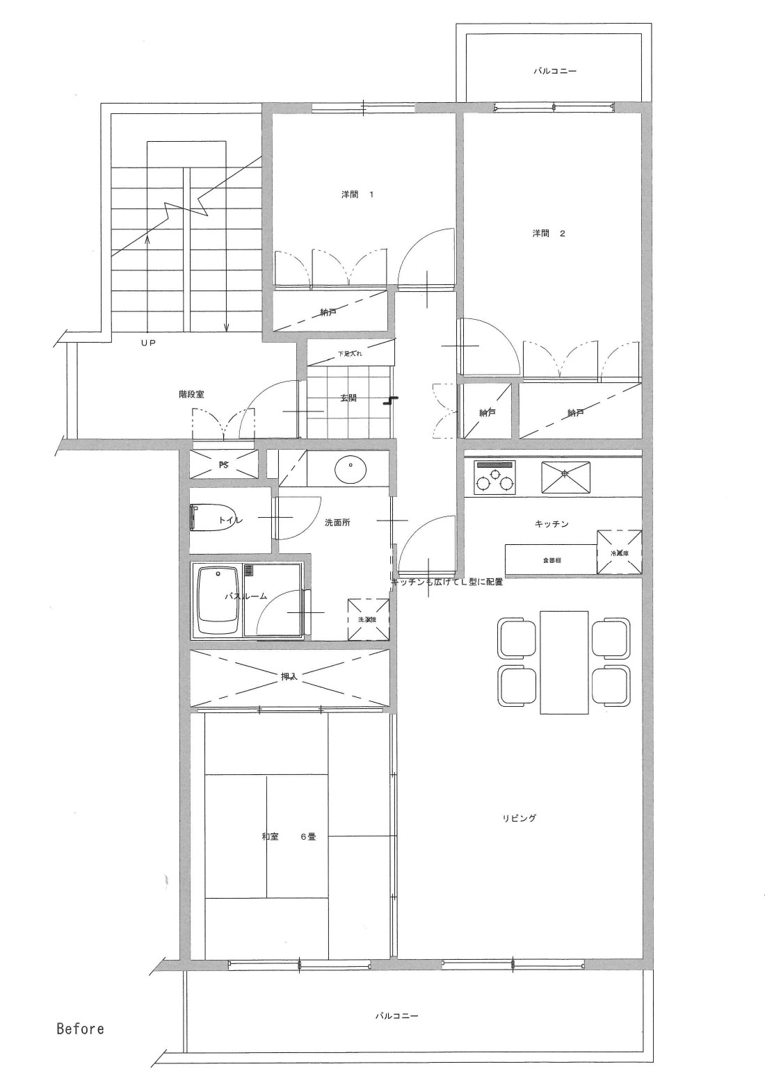
開業30数年を迎え、時代に即した、リノベーションを考える。
内装、設備を全て解体し、医療器材も新しく入れ替える。基本的なレイアウトは残しつつ、収納を整理した。
待合室の床上げを撤去して、石張りとし、土足仕様とした。工事期間、約40日。全体的にすっきりとして好評である。

マンションリノベーションA

マンションリノベーションA

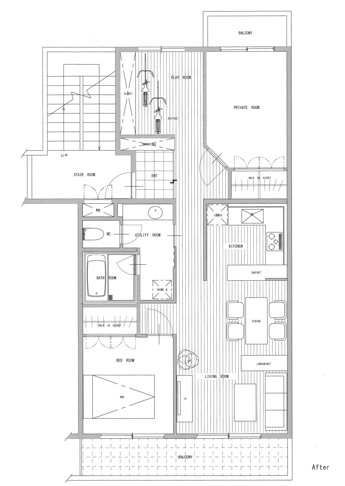
サイクリングが趣味のご夫妻。料理が趣味の奥様。
バスタイムも楽しみたい。そんな希望を叶えた住まい。

下足入れを移動し、一部壁を後退させることで、玄関周りが広くなり、空間に余裕が生まれ、自転車も楽に出し入れが可能。いつまでも自転車を眺め、触れていたい。そんな願いで自転車専用室を設けた。
壁一面には全面収納棚を設け、関連部品を納めることが出来る。
キッチンも広げてL型に配置し、使い勝手を高めた。又、バスタイムも身体をリラックスさせる重要な時間と考え、ホテル感覚で楽しんでもらえる大きく、ゆったりとしたバスユニットを選んだ。
リフォーム前
リフォーム前
Before
リフォーム後
リフォーム後
After

マンションリノベーション B

マンションリノベーションB

自宅で鍼灸院を営みたい。そんな願いを叶えた住まい。

洋間1・2を撤去し、施術室として改装。そのまま外から靴を脱がずに入れるフラット仕上げにしました。
自宅玄関はアール部分で段差を設け、仕事、生活部分を明確に分離し気持ちの切り替えを促す役目を果たします。
リビングにつながる和室をやめて独立した洋間寝室とし、リビング、ダイニングも一体性を持たせ、広さを感じさせるよう、低いキャビネット、床はフローリング張り仕上げとしました。
リフォーム前
リフォーム前
Before
リフォーム後
リフォーム後
After